结构特点
1、产品结构合理、密封可靠、性能优良、造型美观。
2、密封面堆焊Co基硬质合金,耐磨、耐蚀、抗擦伤性能好、使用寿命长。
3、阀杆经调质及表面氮化处理,有良好的抗腐性及抗擦伤性。
4、阀门设有倒密封结构,密封可靠。
5、零件材质及法兰尺寸可根据实际工况或用户要求合理选配,满足各种工程需要。
执行标准
设计规范:GB/T 1223
结构长度:GB/T 12221
连接法兰:JB/T 79.1、GB/T9113、HG/T20592
试验与检验:JB/T 9092、GB/T13927
压力-温度:GB/T12224
性能参数
公称通径:DN20~400mm
公称压力:PN1.6-16.0MPa
适用温度:≤550℃
主要材质:25.WCB、铬镍调、铬镍钼钢、铬钼钢
适用介质:水、油品、蒸汽、硝酸类、醋酸类等
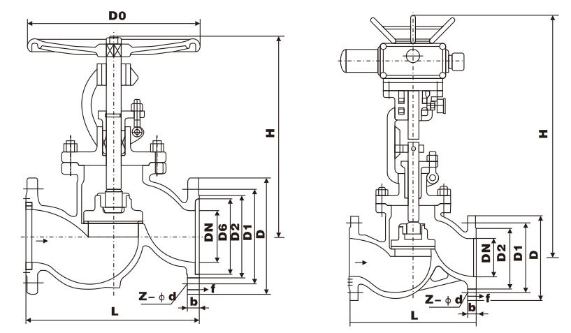
|
DN(mm) |
L |
D |
D1 |
D2 |
b |
f |
Z-Φd |
H |
Do |
WT(kg) |
|
J41H/Y/B-16 J41W-16P/R/PL/RL J41Y-16I |
||||||||||
|
10 |
130 |
90 |
60 |
40 |
14 |
2 |
4-14 |
198 |
120 |
4.7 |
|
15 |
130 |
95 |
65 |
45 |
14 |
2 |
4-14 |
218 |
120 |
5.2 |
|
20 |
150 |
105 |
75 |
55 |
14 |
2 |
4-14 |
258 |
140 |
7.1 |
|
25 |
160 |
115 |
85 |
65 |
14 |
2 |
4-14 |
275 |
160 |
7.4 |
|
32 |
180 |
135 |
100 |
78 |
15 |
2 |
4-18 |
280 |
180 |
8.5 |
|
40 |
200 |
145 |
110 |
85 |
16 |
2 |
4-18 |
330 |
200 |
12.5 |
|
50 |
230 |
160 |
125 |
100 |
16 |
3 |
4-18 |
350 |
240 |
20 |
|
65 |
290 |
180 |
145 |
120 |
18 |
3 |
4-18 |
400 |
280 |
25 |
|
80 |
310 |
195 |
160 |
135 |
20 |
3 |
8-18 |
355 |
280 |
35 |
|
100 |
350 |
215 |
180 |
155 |
20 |
3 |
8-18 |
415 |
320 |
50 |
|
125 |
400 |
245 |
210 |
185 |
22 |
3 |
8-18 |
460 |
360 |
75 |
|
150 |
480 |
280 |
240 |
210 |
24 |
3 |
8-23 |
510 |
400 |
100 |
|
200 |
600 |
335 |
295 |
205 |
26 |
3 |
12-23 |
710 |
400 |
210 |
|
250 |
650 |
405 |
355 |
320 |
30 |
3 |
12-23 |
789 |
450 |
446 |
|
300 |
750 |
460 |
410 |
375 |
30 |
3 |
12-23 |
925 |
500 |
648 |
|
DN(mm) |
L |
D |
D1 |
D2 |
b |
f |
Z-Φd |
H 手 |
H电 |
Do |
电动装罝 |
WT(kg) |
|
|
手动 |
电动 |
||||||||||||
|
J41H/Y/B-25C J41W-25P/PL/RL J41Y-25I J941H/Y-25C J941W-25P/PL/RL J941Y-25I |
|||||||||||||
|
10 |
130 |
90 |
60 |
40 |
16 |
2 |
4-14 |
198 |
- |
120 |
- |
4.9 |
- |
|
15 |
130 |
95 |
65 |
45 |
16 |
2 |
4-14 |
218 |
- |
120 |
- |
5.4 |
- |
|
20 |
150 |
105 |
75 |
55 |
16 |
2 |
4-14 |
258 |
- |
140 |
- |
7 |
- |
|
25 |
160 |
115 |
85 |
65 |
16 |
2 |
4-14 |
275 |
- |
160 |
- |
7.4 |
- |
|
32 |
180 |
135 |
100 |
78 |
18 |
2 |
4-18 |
280 |
- |
180 |
- |
8.5 |
- |
|
40 |
200 |
145 |
110 |
85 |
18 |
3 |
4-18 |
330 |
- |
200 |
- |
12.5 |
- |
|
50 |
230 |
160 |
125 |
100 |
20 |
3 |
4-18 |
350 |
645 |
240 |
DZW101 |
16 |
50 |
|
65 |
290 |
180 |
145 |
120 |
22 |
3 |
8-18 |
400 |
690 |
280 |
DZW101 |
25 |
62 |
|
80 |
310 |
195 |
160 |
135 |
22 |
3 |
8-18 |
355 |
715 |
280 |
DZW151 |
30 |
67 |
|
100 |
350 |
230 |
190 |
160 |
24 |
3 |
8-23 |
415 |
770 |
320 |
DZW20 |
34.5 |
73 |
|
125 |
400 |
270 |
220 |
188 |
28 |
3 |
8-25 |
460 |
780 |
360 |
DZW30 |
89 |
127 |
|
150 |
480 |
300 |
250 |
218 |
30 |
3 |
8-25 |
510 |
875 |
400 |
DZW45 |
98 |
215 |
|
200 |
600 |
360 |
310 |
278 |
34 |
3 |
12-25 |
710 |
967 |
400 |
DZW60 |
180 |
322 |
|
250 |
650 |
425 |
370 |
332 |
36 |
3 |
12-30 |
789 |
- |
450 |
- |
446 |
- |
|
300 |
750 |
485 |
430 |
390 |
40 |
4 |
12-30 |
925 |
- |
500 |
- |
654 |
- |
|
DN(mm) |
L |
D |
D1 |
D2 |
b |
f |
f2 |
Z-Φd |
H 手 |
H电 |
Do |
电动装罝 |
WT(kg) |
|
|
手动 |
电动 |
|||||||||||||
|
J41H/Y/B-40C J41W-40P/PL/RL J41Y-40I J941H/Y-40C J941W-40P/PL/RL J941Y-40I |
||||||||||||||
|
10 |
130 |
90 |
60 |
40 |
16 |
2 |
4 |
4-14 |
198 |
- |
120 |
- |
4.9 |
- |
|
15 |
130 |
95 |
65 |
45 |
16 |
2 |
4 |
4-14 |
238 |
- |
120 |
- |
5.4 |
- |
|
20 |
150 |
105 |
75 |
55 |
16 |
2 |
4 |
4-14 |
275 |
- |
140 |
- |
7 |
- |
|
25 |
160 |
115 |
85 |
65 |
16 |
2 |
4 |
4-14 |
285 |
- |
160 |
- |
8.8 |
- |
|
32 |
180 |
135 |
100 |
78 |
18 |
2 |
4 |
4-18 |
302 |
|
180 |
- |
11.8 |
|
|
40 |
200 |
145 |
110 |
85 |
18 |
3 |
4 |
4-18 |
355 |
- |
200 |
- |
16.5 |
- |
|
50 |
230 |
160 |
125 |
100 |
20 |
3 |
4 |
4-18 |
370 |
645 |
240 |
DZW101 |
24 |
61 |
|
65 |
290 |
180 |
145 |
120 |
22 |
3 |
4 |
8-18 |
408 |
690 |
280 |
DZW101 |
33 |
75 |
|
80 |
310 |
195 |
160 |
135 |
22 |
3 |
4 |
8-18 |
436 |
715 |
320 |
DZW201 |
44 |
84 |
|
100 |
350 |
230 |
190 . |
160 |
24 |
3 |
4.5 |
8-23 |
480 |
770 |
360 |
DZW301 |
60 |
101 |
|
125 |
400 |
270 |
220 |
188 |
28 |
3 |
4.5 |
8-25 |
558 |
782 |
400 |
DZW45 |
89 |
207 |
|
150 |
480 |
300 |
250 |
218 |
30 |
3 |
4.5 |
8-25 |
611 |
875 |
400 |
DZW60 |
98 |
226 |
|
200 |
600 |
375 |
320 |
282 |
38 |
3 |
4.5 |
12-30 |
720 |
1160 |
400 |
DZW901 |
190 |
339 |
|
DN(mm) |
L |
D |
D1 |
D2 |
b |
f |
f2 |
Z-Φd |
H手 |
H电 |
Do |
电动装罝 |
WT(kg) |
|
|
手动 |
电动 |
|||||||||||||
|
J41H/Y/B-64C J41W-64P/PL/RL J41Y-64I J941H/Y-64C J941W-64P/PL/RL J941Y-64I |
||||||||||||||
|
10 |
170 |
100 |
70 |
50 |
18 |
2 |
4 |
4-14 |
198 |
- |
120 |
- |
5.7 |
- |
|
15 |
170 |
105 |
75 |
55 |
18 |
2 |
4 |
4-14 |
195 |
- |
140 |
- |
10 |
- |
|
20 |
190 |
125 |
90 |
68 |
20 |
2 |
4 |
4-18 |
228 |
- |
160 |
- |
13 |
- |
|
25 |
210 |
135 |
100 |
78 |
22 |
2 |
4 |
4-18 |
275 |
- |
180 |
- |
14.5 |
- |
|
32 |
230 |
150 |
110 |
82 |
24 |
2 |
4 |
4-23 |
325 |
- |
200 |
- |
19 |
- |
|
40 |
260 |
165 |
125 |
95 |
24 |
3 |
4 |
4-23 |
360 |
- |
240 |
- |
25 |
- |
|
50 |
300 |
175 |
135 |
105 |
26 |
3 |
4 |
8-23 |
410 |
710 |
280 |
DZW10 |
35 |
64 |
|
65 |
340 |
200 |
160 |
130 |
28 |
3 |
4 |
8-23 |
450 |
750 |
320 |
DZW15 |
48 |
77 |
|
80 |
380 |
210 |
170 |
140 |
30 |
3 |
4 |
8-18 |
485 |
785 |
360 |
DZW30 |
56 |
88 |
|
100 |
430 |
250 |
200 |
168 |
32 |
3 |
4 |
8-25 |
537 |
837 |
400 |
DZW45 |
125 |
171 |
|
125 |
500 |
295 |
240 |
202 |
36 |
3 |
4 |
8-30 |
631 |
- |
400 |
- |
131 |
- |
|
150 |
550 |
340 |
280 |
240 |
38 |
3 |
4 |
8-34 |
646 |
- |
450 |
- |
157 |
- |
|
200 |
650 |
405 |
345 |
300 |
44 |
3 |
4 |
12-34 |
813 |
- |
500 |
- |
283 |
- |
|
J41H/Y/B-100C J41W-100P/R/PL/RL J41Y-100I J941 5-100C J941W-100P/R/PL/RL J941Y-100I |
||||||||||||||
|
10 |
170 |
100 |
70 |
50 |
20 |
2 |
4 |
4-14 |
198 |
- |
120 |
- |
6 |
- |
|
15 |
170 |
105 |
75 |
55 |
20 |
2 |
4 |
4-14 |
202 |
- |
140 |
- |
11 |
- |
|
20 |
190 |
125 |
90 |
68 |
22 |
2 |
4 |
4-18 |
228 |
- |
160 |
- |
13.2 |
- |
|
25 |
210 |
135 |
100 |
78 |
24 |
2 |
4 |
4-18 |
250 |
- |
180 |
- |
14 |
- |
|
32 |
230 |
150 |
110 |
82 |
24 |
2 |
4 |
4-23 |
326 |
- |
220 |
- |
15 |
- |
|
40 |
260 |
165 |
125 |
95 |
26 |
3 |
4 |
4-23 |
359 |
- |
240 |
- |
29 |
- |
|
50 |
300 |
195 |
145 |
112 |
28 |
3 |
4 |
4-25 |
414 |
710 |
280 |
DZW10 |
49 |
82 |
|
65 |
340 |
220 |
170 |
138 |
32 |
3 |
4 |
8-25 |
434 |
750 |
320 |
DZW15 |
65 |
104 |
|
80 |
380 |
230 |
180 |
148 |
34 |
3 |
4 |
8-25 |
547 |
785 |
400 |
DZW30 |
95 |
138 |
|
100 |
430 |
265 |
210 |
172 |
38 |
3 |
4.5 |
8-30 |
621 |
837 |
450 |
DZW45 |
115 |
243 |
|
125 |
500 |
310 |
250 |
210 |
42 |
3 |
4.5 |
8-34 |
732 |
- |
450 |
- |
149 |
- |
|
150 |
550 |
350 |
290 |
250 |
46 |
3 |
4.5 |
12-34 |
840 |
- |
500 |
- |
310 |
- |
|
200 |
650 |
430 |
360 |
312 |
54 |
3 |
4.5 |
12-41 |
925 |
- |
550 |
- |
590 |
__I_ |
|
J41H/Y/B-160C J41W-160P/R/PL/RL J41Y-160I J941H/Y -160C J941W-160P/R/RL/RL J941Y-160I |
||||||||||||||
|
15 |
170 |
110 |
75 |
52 |
24 |
2 |
4 |
4-18 |
148 |
- |
140 |
- |
12.2 |
_ |
|
20 |
190 |
130 |
90 |
65 |
26 |
2 |
4 |
4-23 |
156 |
- |
160 |
- |
15 |
- |
|
25 |
210 |
140 |
100 |
72 |
28 |
2 |
4 |
4-23 |
125 |
- |
180 |
- |
17 |
- |
|
32 |
230 |
165 |
115 |
85 |
30 |
2 |
4 |
4-25 |
200 |
- |
200 |
- |
21.4 |
_ |
|
40 |
260 |
175 |
125 |
92 |
32 |
3 |
4 |
4-27 |
231 |
- |
240 |
- |
32 |
_ |
|
50 |
300 |
215 |
165 |
132 |
36 |
3 |
4 |
8-25 |
262 |
- |
250 |
- |
52 |
_ |
|
65 |
340 |
245 |
190 |
152 |
44 |
3 |
4 |
8-30 |
303 |
- |
320 |
- |
69 |
_ |
|
80 |
380 |
260 |
205 |
168 |
46 |
3 |
4 |
8-30 |
341 |
- |
400 |
- |
|
_ |
|
100 |
430 |
300 |
240 |
200 |
48 |
3 |
4.5 |
8-34 |
485 |
- |
450 |
- |
119 |
_ |





