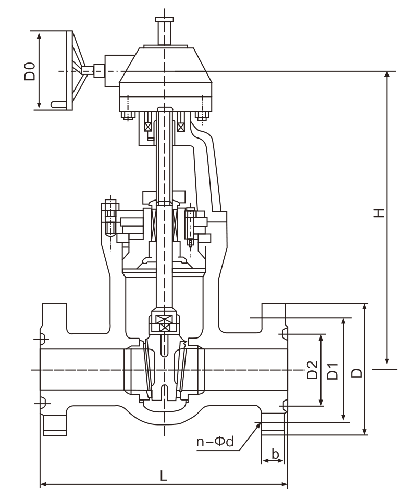
结构特点
1、阀门与管路连接采用法兰式结构。
2、流体阻力小 , 密封面受介质的忡刷和侵蚀小。
3、阀瓣、阀座的密封面采用SLITE司太立钴基硬质合金堆焊而成,耐磨、耐高温,抗擦伤性能好、使用寿命长。
4、介质流向不受限制 , 不扰流、不降低压力。
5、阀盖填料函合理,填料加缓蚀剂,密封可靠,开关平稳。
6、形体简单 , 结构长度短,制造工艺性好,适用范围广。
执行标准
设计与制造:API 600,API6D
结构长度:ANSI B16.10,API 6D
法兰尺寸:ANSI B16.5
压力-温度:ANSI B16.34
试验-检验:API 598,API6D
性能参数
公称通径:DN50~600mm
公称压力:PN3.0~64MPa
适用温度:-29~570℃
适用介质:水、蒸汽、油品、硝酸类、醋酸类、尿素
主要材质:WCB,WC1,WC6,WC9
|
公称通径DN |
Class900Lb |
|||||||||||||
|
mm |
in |
L |
D |
D1 |
D2 |
b |
N-Φd |
H |
Do |
|||||
|
50 |
2 |
371 |
216 |
165.0 |
95.3 |
46.0 |
8-Φ25.4 |
521 |
300 |
|||||
|
65 |
21/2 |
422 |
244 |
190.5 |
108.0 |
49.0 |
8-Φ28.5 |
584 |
350 |
|||||
|
80 |
3 |
384 |
241 |
190.5 |
123.8 |
46.0 |
8-Φ25.4 |
648 |
350 |
|||||
|
100 |
4 |
460 |
292 |
235.0 |
149.2 |
52.4 |
8-Φ32 |
750 |
400 |
|||||
|
125 |
5 |
562 |
349 |
279.4 |
181.0 |
58.7 |
8-Φ35 |
780 |
400 |
|||||
|
150 |
6 |
613 |
381 |
317.5 |
211.1 |
63.6 |
12-Φ32 |
800 |
500 |
|||||
|
200 |
8 |
740 |
470 |
393.7 |
269.9 |
71.4 |
12-Φ38 |
940 |
600 |
|||||
|
250 |
10 |
841 |
546 |
469.9 |
323.9 |
77.8 |
16-Φ38 |
1130 |
600 |
|||||
|
300 |
12 |
968 |
610 |
533.4 |
381.0 |
87.2 |
20-Φ38 |
1340 |
650 |
|||||
|
350 |
14 |
1038 |
641 |
558.8 |
419.1 |
97.0 |
20-Φ41 |
1543 |
700 |
|||||
|
400 |
16 |
1140 |
705 |
616 |
419.1 |
97.0 |
20-Φ44 |
1600 |
750 |
|||||
|
450 |
18 |
1232 |
787 |
685.8 |
466.9 |
111.6 |
20-Φ50 |
1830 |
800 |
|||||
|
500 |
20 |
1334 |
857 |
749.3 |
466.9 |
116 |
20-Φ54 |
2100 |
850 |
|||||
|
600 |
24 |
1568 |
1041 |
901.7 |
523.7 |
147.7 |
20-Φ66.5 |
2610 |
900 |
|||||
|
|
Class1500Lb |
|||||||||||||
|
50 |
2 |
371 |
216 |
165.1 |
95.3 |
46.0 |
8-Φ25.4 |
614 |
300 |
|||||
|
65 |
21/2 |
422 |
244 |
190.5 |
108.0 |
49.0 |
8-Φ28.5 |
705 |
350 |
|||||
|
80 |
3 |
473 |
267 |
203.2 |
136.5 |
55.7 |
8-Φ32 |
705 |
400 |
|||||
|
100 |
4 |
549 |
311 |
241.3 |
161.9 |
61.8 |
8-Φ35 |
927 |
400 |
|||||
|
125 |
5 |
676 |
375 |
292.1 |
193.7 |
81.1 |
8-Φ41 |
1120 |
500 |
|||||
|
150 |
6 |
711 |
394 |
317.5 |
211.1 |
92.1 |
12-Φ38 |
1191 |
600 |
|||||
|
200 |
8 |
841.5 |
483 |
393.7 |
269.9 |
103.0 |
12-Φ44.5 |
1524 |
650 |
|||||
|
250 |
10 |
1000 |
584 |
482.6 |
323.9 |
119.1 |
12-Φ51 |
1854 |
700 |
|||||
|
300 |
12 |
1146 |
673 |
571.5 |
381.0 |
138.2 |
16-Φ54 |
2184 |
700 |
|||||
|
350 |
14 |
1276 |
749 |
635.0 |
419.1 |
149.2 |
16-Φ60.5 |
2216 |
800 |
|||||
|
400 |
16 |
1406 |
825.5 |
704.9 |
419.1 |
154 |
16-Φ66.5 |
2210 |
800 |
|||||
|
450 |
18 |
1559 |
914 |
774.7 |
466.9 |
172 |
16-Φ73 |
— |
850 |
|||||
|
500 |
20 |
1686 |
984 |
832 |
466.9 |
186 |
16-Φ79 |
— |
900 |
|||||
|
600 |
24 |
1971 |
1168 |
990.6 |
523.7 |
211 |
16-Φ92 |
— |
950 |
|||||
|
|
Class2500Lb |
|||||||||||||
|
50 |
2 |
454 |
235 |
171.5 |
101.6 |
58.7 |
8-Φ28.5 |
523 |
350 |
|||||
|
65 |
21/2 |
514 |
267 |
196.9 |
111.1 |
66.7 |
8-Φ32 |
631 |
350 |
|||||
|
80 |
3 |
584 |
305 |
228.6 |
127.0 |
76.1 |
8-Φ35 |
735 |
400 |
|||||
|
100 |
4 |
683 |
356 |
273.0 |
157.2 |
87.3 |
8-Φ41 |
891 |
500 |
|||||
|
125 |
5 |
806 |
419 |
323.9 |
190.5 |
104.6 |
8-Φ48 |
1047 |
650 |
|||||
|
150 |
6 |
927 |
483 |
368.3 |
228.6 |
120.7 |
8-Φ54 |
1144 |
700 |
|||||
|
200 |
8 |
1038 |
552 |
438.2 |
279.4 |
141.3 |
12-Φ54 |
1392 |
700 |
|||||
|
250 |
10 |
1292 |
673 |
539.8 |
342.9 |
182.6 |
12-Φ66.5 |
1614 |
800 |
|||||
|
300 |
12 |
1444 |
762 |
619.3 |
371.3 |
192 |
12-Φ73 |
1900 |
850 |
|||||





