结构特点
1.夹套焊装于阀门的两法兰之间,阀门的侧面、底部设置有夹套的连接口。
2.连接法兰尺寸比同一规格普通阀门的连接法兰大一到两个规格,结构长度与同规格的普通阀门相同。
3.夹套中可自由地流过蒸汽或其它热的保温介质,确保粘稠介质可顺畅地流过阀门。
执行标准
设计与制造:GB12234-89 API600
结构长度:GB12221-89
法兰连接:ANSI B16.5,GB9112~9131,JB/T74~90,JB/T79-94,SH3006 ,HG20615~20635
压力温度等级:GB9131,ANSI B16.34
试验与检验:JB/T 9092,GB13927,API598
性能参数
公称通径:DN40~300mm
公称压力:PN1.6Mpa~6.4Mpa/150LB-300LB-600LB
适用温度:-29~425℃(碳钢)、-40~500℃(不锈钢)
适用介质:水、油、蒸汽、导热油、滤清、易结晶物
主要材质:锻钢、铸钢、不锈钢
| 型号 | 压力 |
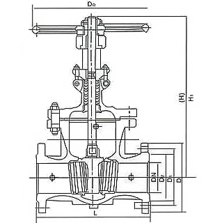
公称通径 DN |
尺寸(mm) | |||||||
| L | D | D1 | D2 | b | z-d | H | D0 | |||
|
BZ41H-16C BZ41W-16P BZ41W-16R |
1.6 | 40 | 200 | 160 | 125 | 100 | 18-3 | 4-18 | 310 | 200 |
| 50 | 250 | 180 | 145 | 120 | 18-3 | 4-18 | 358 | 240 | ||
| 65 | 265 | 195 | 160 | 135 | 20-3 | 8-18 | 373 | 240 | ||
| 80 | 280 | 215 | 180 | 155 | 20-3 | 8-18 | 435 | 280 | ||
| 100 | 300 | 245 | 210 | 185 | 22-3 | 8-18 | 500 | 300 | ||
| 125 | 325 | 280 | 240 | 210 | 24-3 | 8-23 | 614 | 320 | ||
| 150 | 350 | 335 | 295 | 265 | 26-3 | 12-23 | 674 | 360 | ||
| 200 | 400 | 405 | 355 | 320 | 30-3 | 12-25 | 818 | 400 | ||
| 250 | 450 | 460 | 410 | 375 | 30-4 | 12-25 | 969 | 450 | ||
| 300 | 500 | 520 | 470 | 435 | 34-4 | 16-25 | 1145 | 560 | ||
|
BZ41H-25C BZ41W-25P BZ41W-25R |
2.5 | 40 | 200 | 160 | 125 | 100 | 20-3 | 4-18 | 358 | 240 |
| 50 | 250 | 180 | 145 | 120 | 22-3 | 8-18 | 373 | 240 | ||
| 65 | 265 | 195 | 160 | 135 | 22-3 | 8-18 | 435 | 280 | ||
| 80 | 280 | 230 | 190 | 160 | 24-3 | 8-18 | 500 | 300 | ||
| 100 | 300 | 270 | 220 | 188 | 28-3 | 8-15 | 614 | 320 | ||
| 125 | 325 | 300 | 250 | 218 | 30-3 | 8-25 | 674 | 360 | ||
| 150 | 350 | 360 | 310 | 278 | 34-3 | 12-25 | 818 | 400 | ||
| 200 | 400 | 425 | 370 | 332 | 36-3 | 12-30 | 969 | 450 | ||
| 250 | 450 | 485 | 430 | 390 | 40-4 | 12-30 | 1145 | 560 | ||
| 300 | 500 | 550 | 490 | 448 | 40-4 | 16-34 | 1145 | 640 | ||





