结构特点
配水闸阀,是在原PZ1型的基础上进行了改良设计;PXW-II型是在改良设计的基础上增加矿用阀门电动装置,来满足煤矿水泵房无人值班,全自动化生产的需求;和“KXB系列矿用隔爆型电动阀门控制箱”配套使用后,可与DCS系统衔接。
配水闸阀具有结构简单、密封性能好、清污方便、操作灵活、省力等特点,主要应用于井下泵房吸水井的配水之用。(I型为手动操作)
执行标准
质量保证:ISO9000
产品标准:CJ/T167<span style="color:#333333;font-family:" font-size:13px;background-color:#ffffff;"="">GB/T 12232-2005
性能参数
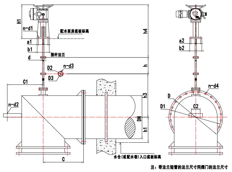
公称通径:DN400~1200mm
公称压力:0.1 (试验压力0.25)
适用温度:水≤80℃
操作行程:220~350mm
|
阀门型号 |
DN |
D |
D1 |
D2 |
D3 |
d |
H1 |
h1 |
h2 |
h3 |
h4 |
|
PXWⅡ(Ⅰ)-400 |
400 |
540 |
495 |
90 |
120 |
35 |
1066 |
250 |
462 |
523 |
1250 |
|
PXWⅡ(Ⅰ)-500 |
500 |
640 |
600 |
90 |
120 |
35 |
1066 |
300 |
512 |
673 |
1250 |
|
PXWⅡ(Ⅰ)-600 |
600 |
760 |
705 |
90 |
135 |
45 |
1066 |
350 |
602 |
768 |
1250 |
|
PXWⅡ(Ⅰ)-800 |
800 |
960 |
920 |
90 |
135 |
45 |
1066 |
450 |
702 |
868 |
1250 |
|
PXWⅡ(Ⅰ)-1000 |
1000 |
1160 |
1120 |
110 |
160 |
50 |
1315 |
550 |
842 |
1119 |
1500 |
|
PXWⅡ(Ⅰ)-1200 |
1200 |
1450 |
1380 |
110 |
160 |
50 |
1315 |
600 |
1010 |
1300 |
1500 |
|
阀门型号 |
a1 |
a2 |
b1 |
b2 |
C |
C1 |
C2 |
n×d1 |
n×d2 |
n×d3 |
n×d4 |
|
PXWⅡ(Ⅰ)-400 |
300 |
300 |
400 |
400 |
410 |
260 |
70 |
4×Ф19 |
2×Ф15 |
4×Ф17 |
16×Ф23 |
|
PXWⅡ(Ⅰ)-500 |
300 |
300 |
400 |
400 |
470 |
340 |
70 |
4×Ф19 |
2×Ф15 |
4×Ф17 |
16×Ф23 |
|
PXWⅡ(Ⅰ)-600 |
300 |
300 |
400 |
400 |
520 |
360 |
80 |
4×Ф19 |
2×Ф19 |
4×Ф17 |
20×Ф25 |
|
PXWⅡ(Ⅰ)-800 |
300 |
300 |
400 |
400 |
625 |
460 |
80 |
4×Ф19 |
2×Ф19 |
4×Ф17 |
24×Ф30 |
|
PXWⅡ(Ⅰ)-1000 |
400 |
400 |
500 |
500 |
720 |
560 |
100 |
4×Ф19 |
2×Ф19 |
6×Ф22 |
27×Ф30 |
|
PXWⅡ(Ⅰ)-1200 |
400 |
400 |
500 |
500 |
820 |
660 |
100 |
4×Ф19 |
2×Ф19 |
6×Ф22 |
30×Ф30 |





